Planning

Hardscape Construction & Our Lifetime Structural Warranty

May 11, 2020
Hardscape Construction & Our Lifetime Structural Warranty

What You Should Expect

When built correctly, hardscape structures can and should outlast us all. At Outdoor Dreams, we proudly adhere to the highest standards of build practices and back our hardscape structures with a lifetime structural warranty.

egypt's famous pyramids in the sandy dessert

Settling & Failure is not normal

Hardscape structures can and should outlast us all

The world is filled with masonry structures that have lasted for hundreds and thousands of years. If the Egyptians could build pyramid structures that have stood tall for over 4,000 years, there is no reason that, with today's superior engineering, an outdoor living space can't be built for a lifetime of enjoyment.

Industry Standard: 1-5 year warranties

Why are most warranties so short?

Despite the superior engineering available today, the typical hardscape warranty is only 1 to 5 years. The reason for this is quite simple: most hardscape structures are not built to last.

Most homeowners do not realize that most hardscape structures have no enforceable building code. Instead of building to standards set for safety, longevity, and homeowner protection, hardscape structures are often built to keep prices competitive. The foundation is often the first place where corners are cut to save money, leading to settling and failure.

paver walkway down the side of the house has rows falling to the side and weeds growing in between the rows

What does failure look like?

Proper build practices do exist, but the lack of enforceable building codes has created a hardscape industry where these practices are rarely implemented. This has led to settling and structural failures becoming commonplace and expected. Since these failures are caused by improper foundations, most patio failures cannot be permanently fixed, leaving homeowners with two choices: live with a tripping hazard and eyesore or pay to have the structure demolished and rebuilt correctly.

The High Cost of Improper Construction

Improperly built hardscapes lower the attractiveness of a space, making it less likely to be used, and diminishing the enjoyment of your home. Additionally, it usually lowers the resale value of a home. Once a space becomes unsightly and/or full of tripping hazards, most prospective buyers plan on replacing the hardscape which lowers the ultimate price they're willing to pay.

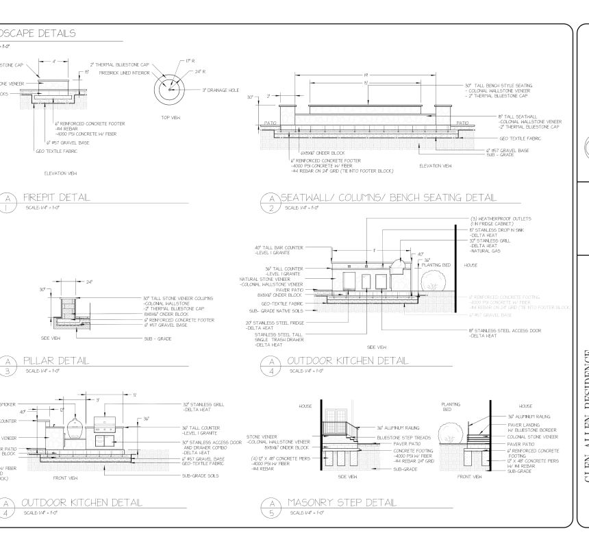
blueprint of hardscape plan for structural integrity that lasts a lifetime

The Outdoor Dreams Difference

Lifetime Structural Warranty

At Outdoor Dreams, we proudly adhere to the highest standards of build practices and back our hardscape structures with a lifetime structural warranty that guarantees against settling and failure.

You'll never have to question how your structures are being built. We produce detailed construction drawings of every structure and include them in the contract. For our clients' reassurance, we create this contractual obligation to build our structures exactly as designed.

Imagine a lifetime of enjoyment...

Summer drinks and pitcher are arranged on a drink tray and is on the metal bench that sits on the paver stone patio

Cascading Curves - A Case Study

Cascading Curves - A Case Study

This homeowner approached Outdoor Dreams while relocating from Hawaii into their newly built custom home. With a fresh start in Virginia, they envisioned a poolscape that would feel both welcoming and grounded—a space that blended seamlessly with the architecture of their home while also reflecting the rustic, natural warmth of the Midwest.

Case Study

Sculpting Fire - Custom Curved Fire Features

Sculpting Fire - Custom Curved Fire Features

When it comes to building a luxury poolscape, a swimming pool is just the beginning. The real magic happens in the details—the elements that transform a backyard into an unforgettable retreat. For the Cascading Curves Project, that magic came in the form of two fully customized, curve-driven fire features that now anchor the space with drama, warmth, and unmistakable personality.

Other Resources

How to Compare Competing Estimates

How to Compare Competing Estimates

Learn how to examine an estimate and the services included.

Planning
View
Test ToolTip